Electromagnetic Clutch & Brake Combination

Clutch & Brake Combination Type - UCB-O

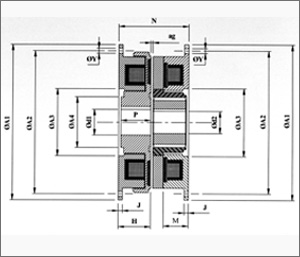
Size/
Torque
Nm
Voltage
DC
Input
Wattage (20-C)
Max A1 A2 A3 A4 d1
Max
d2
max
H J M N P Y ag
Clutch Brake rpm
08
24/
96/
190
* Other
Voltages
on request
15 11.5 8000 80 72 35 23 14 14 24 2 18 50.5 22.2 4x4.5 0.2
15 20 16 6000 100 90 42 28 20 20 26 2.5 20 54.5 24 4x5.5 0.2
30 28 21 5000 125 112 52 40 25 25 28.9 3 22 60.4 27 4x6.6 0.3
60 35 28 4000 150 137 62 45 30 28 32.7 3.5 24 67.2 30.2 4x6.6 0.3
125 50 38 3000 190 175 80 62 45 30 36.5 4 26 74 34.3 4x9.0 0.3
250 68 45 3000 230 215 100 77 50 48 41.6 5 30 83.6 40 4x9.0 0.5
500 85 70 2000 290 270 125 100 65 55 51 6 35 106.5 47 4x11 0.5
625 100 80 1500 355 335 160 130 90 65 63 14 44 140 53 4x11 1.0
1240 120 100 1500 440 420 200 160 100 85 76.5 17 54 171 69.5 4x14 1.0
2550 150 120 1000 540 520 250 190 125 100 93 22 65 209 84 4x14 1.0
  • 1Nm=0.102 kgm = 0.737 lb-ft=10.2 kgcm
  • All dimensions are in mm only